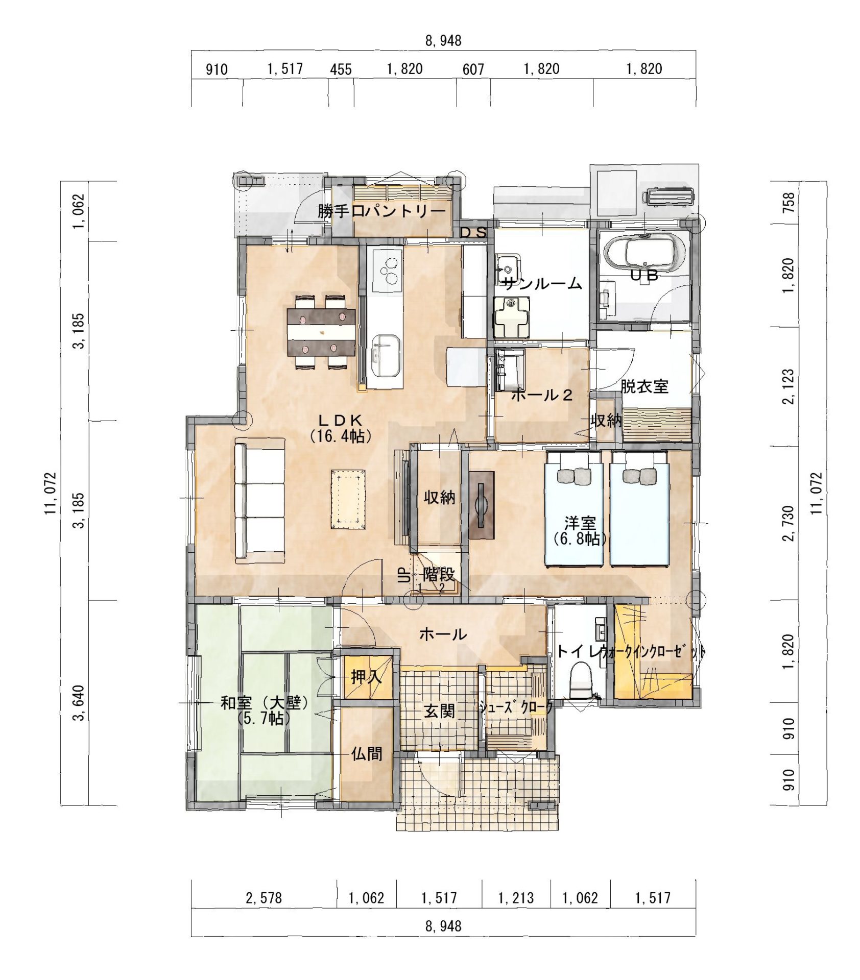
間取り

2階 5LDK 家族みんながストレスなく暮らせる家

1 83.2㎡(25.17坪)

2 46.85㎡(14.17坪)

  • お客様(お坊さん)がお越しになった時はLDKを通らずに応接間(和室)へ直接お通ししたい
  • 同様にトイレに行く際もLDKを経由せずに行って欲しい
  • 家族がお風呂に入っている時も洗面化粧台で歯磨きや顔を洗ったりできるように
  • 洋室(寝室)からトイレへの動線は短めに
  • パントリーは食品をストックするだけでなくゴミを捨てる際の便利な通り道に

そんな生活を手に入れられるような間取りです。

TOP