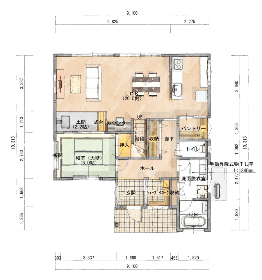
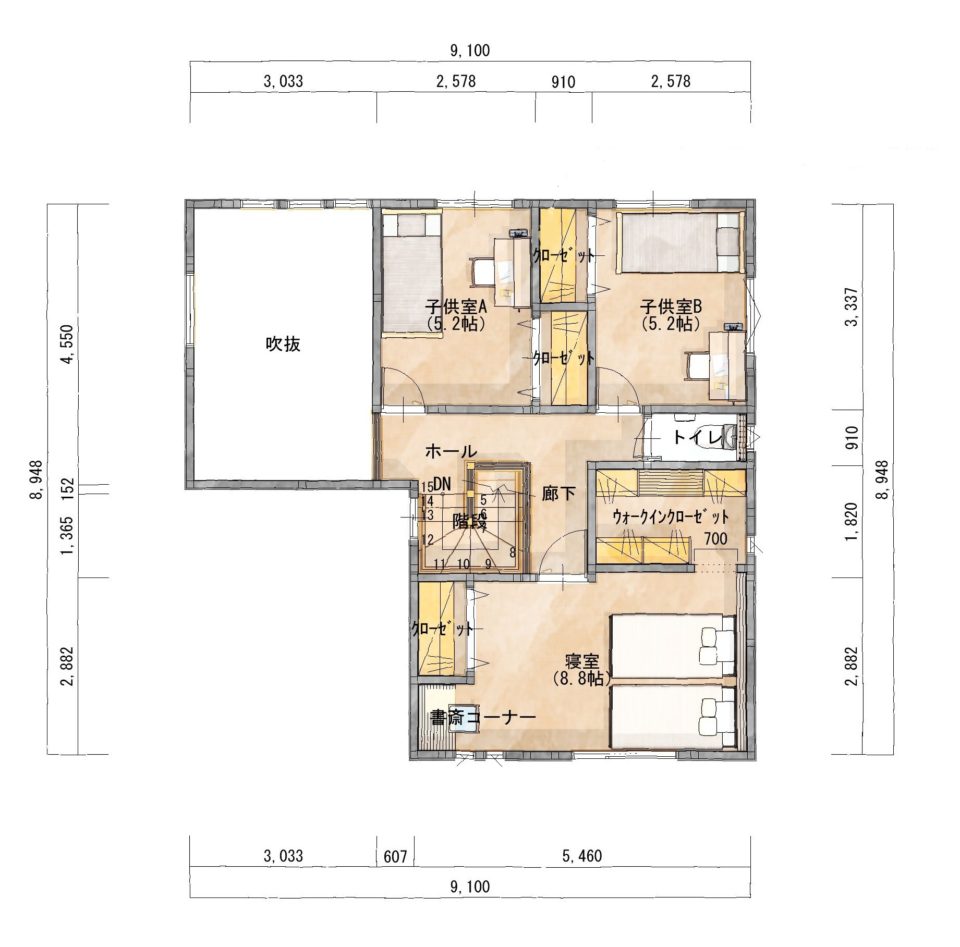
間取り

2階4LDK 家族やお客様の事をしっかり考えた家

1 77.83㎡(23.54坪)

2 51.61㎡(15.61坪)

お客様はLDKを通さずに直接和室(応接間)へ

お客様が沢山お越しになる家で大事にしたいのはお客様の動線。

  • LDKを通って和室に行くのではなく、玄関から直接和室(応接間)へいける事
  • トイレも和室から直接いける事

これらを意識すると家族がもちろんの事、お客様にも気を遣わせる事がありません。

LDKには子供が学校から帰ってきて勉強をしたり、パパやママがパソコンで調べ物をしたりするスタディコーナーを設け、家族みんなで長く過ごせるLDKとなるように意識しました。

TOP