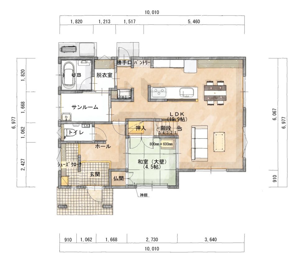
1階 66.52㎡(20.12坪)

2階 49.87㎡(15.09坪)

- お客様が来た際、リビングを通らずに和室へいける動線(リビングを通らずにトイレに行ける動線)
- 子供が年頃になった時、子供の入浴中に洗面脱衣室に入れないという事がないように洗面コーナーを設ける
- グルッと周回出来る水廻り動線
- 寝室の近くにトイレを設けて、将来に備えたい
- 晴れた日にはバルコニーに布団を干したい
そのようなご要望を満たす間取りです。沢山の機能を備えていながらも35坪程度に抑えたので、ご予算的にも嬉しいプランです。
間取り


そのようなご要望を満たす間取りです。沢山の機能を備えていながらも35坪程度に抑えたので、ご予算的にも嬉しいプランです。