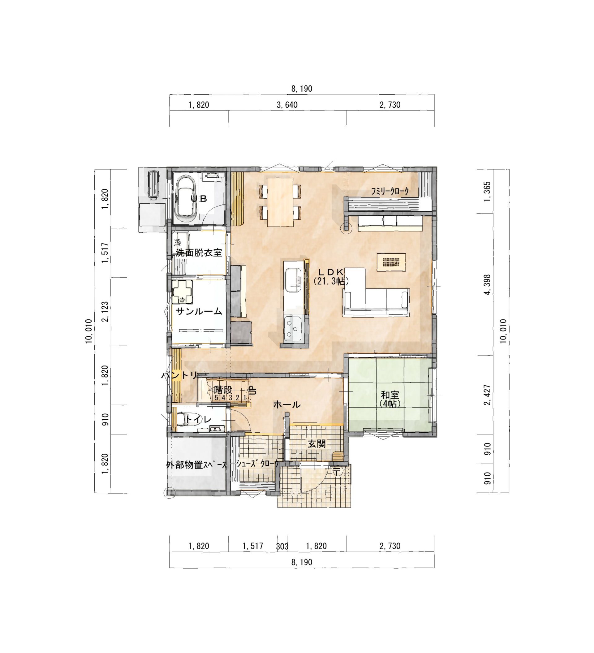
1階 71.76㎡(21.71坪)

2階 44.71㎡(13.52坪)

キッチンは家事の中でも一番多く使う場所。従って、キッチン周りに収納が沢山あるととても便利です。
この間取りでは食品庫(パントリー)とファミリークロークを設けました。
ファミリークロークはLDKで使う季節ものを収納できたり、急な来客があった時に物を仕舞えたりととっても便利。お客様からも中が見られないように配慮してあります。
2階には書斎を設けて、忙しいパパ・ママが集中してお仕事や読書を出来るようにしました。
間取り


キッチンは家事の中でも一番多く使う場所。従って、キッチン周りに収納が沢山あるととても便利です。
この間取りでは食品庫(パントリー)とファミリークロークを設けました。
ファミリークロークはLDKで使う季節ものを収納できたり、急な来客があった時に物を仕舞えたりととっても便利。お客様からも中が見られないように配慮してあります。
2階には書斎を設けて、忙しいパパ・ママが集中してお仕事や読書を出来るようにしました。