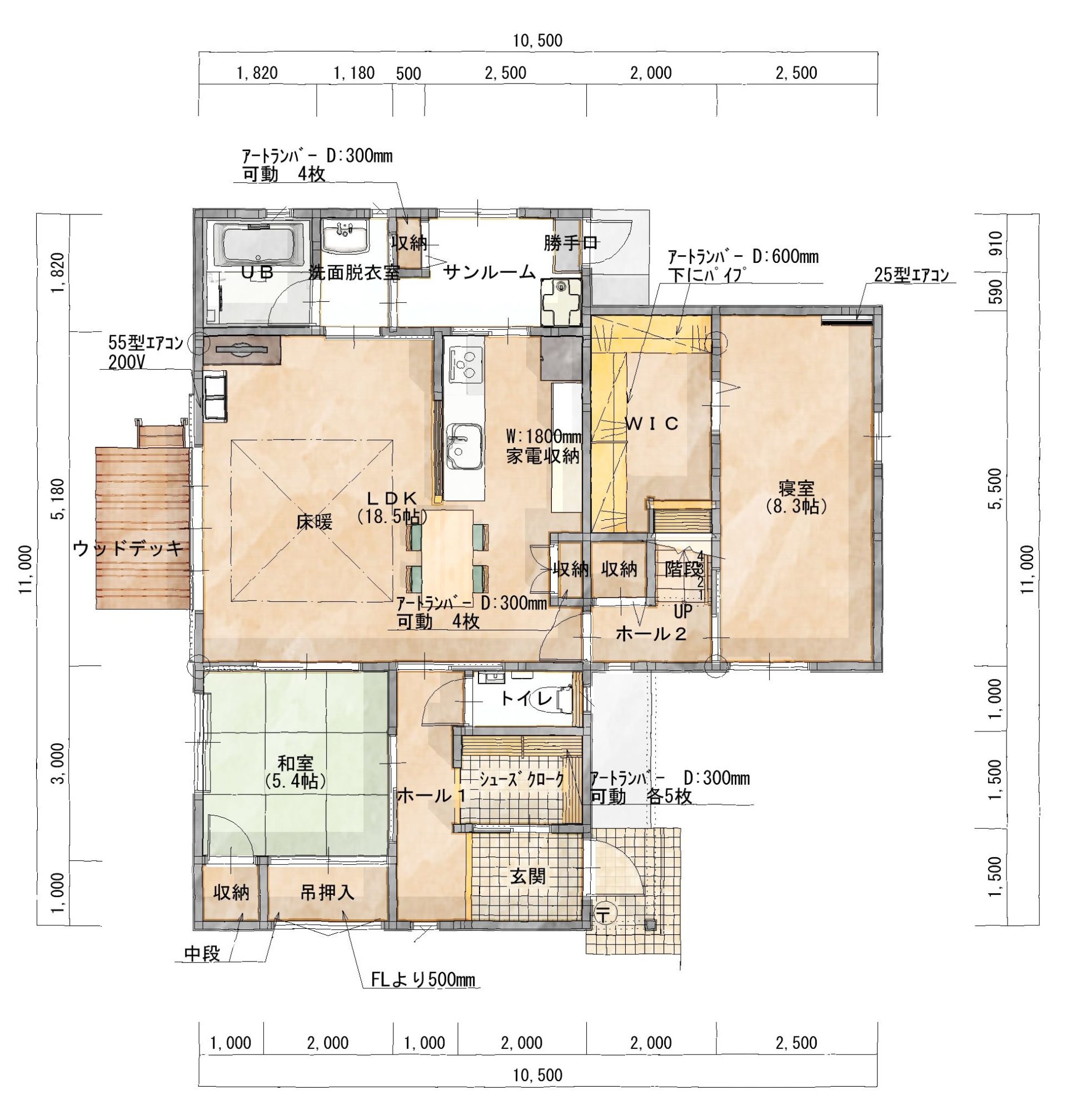
1階 90.75㎡(27.45坪)

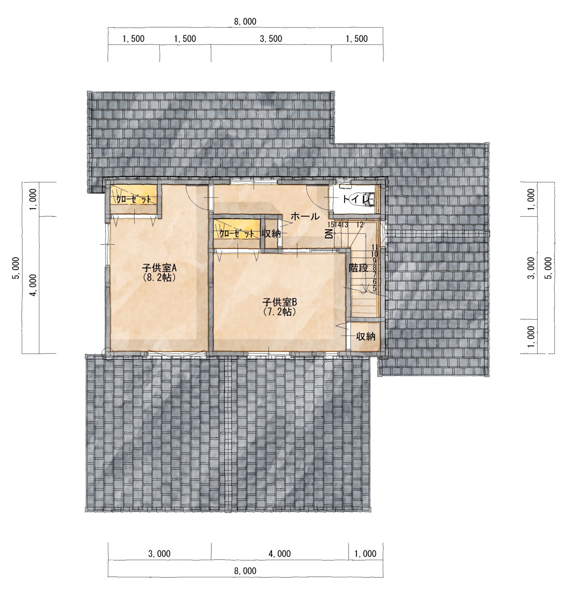
2階 40㎡(12.1坪)

子供が自分の部屋を使うのは数年間に対して、親は定年退職後も含めると2~30年は暮らしていかないといけません。
そこで、2階の子供部屋は+αの感覚で、基本的に平屋ベースの暮らしが出来ないか?という考えのもと、この間取りが完成しました。
水廻り動線もよく、とても暮らしやすそうなお家です。
間取り


子供が自分の部屋を使うのは数年間に対して、親は定年退職後も含めると2~30年は暮らしていかないといけません。
そこで、2階の子供部屋は+αの感覚で、基本的に平屋ベースの暮らしが出来ないか?という考えのもと、この間取りが完成しました。
水廻り動線もよく、とても暮らしやすそうなお家です。