カーテンのたまりに注意しましょう

LDKに大きな窓を設置する際に気を付けたいこと

リビングは太陽の光が沢山入ってくる明るい空間にしたい。そういう想いから高さが2m以上ある大きなテラス窓を計画される方も多いと思います。

当たり前ですが、リビングにはエアコン・ソファ・ローテーブル・テレビ台(テレビ)等沢山の家具や家電製品が置かれます。したがって、大きな窓を設けた場合はどこにどのような家具を設置するのか?を事前に検討しておく必要があります。

 

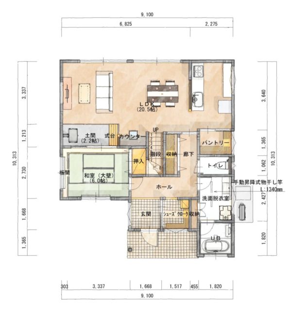
LDKに大きな窓を設置した間取り(引用元:シティハウス産業HP間取りギャラリー

上の間取りを参考にしながらどうのような事をしっかり検討した方が良いのか具体的な事例を説明します。

エアコンの位置

最近のテレビの配置で多いのはコーナーではなく、壁をバックにテレビを置くスタイルです。先日のエアコンに関するコラムでも書きましたが、まずはエアコンの位置をしっかり検討しましょう。上の間取りの場合は大きな窓の向こうにはウッドデッキやタイルテラスが広がる可能性があります。その場合、エアコンはテレビ背面の壁に設置する事になると思いますが、意匠性との兼ね合いをしっかり確認しておくことが大事です。

カーテンのたまりが窓にかからないか

窓にはカーテンや縦型ブラインド、ロールスクリーン等の設置が必須です。窓の幅が大きくなると当然のようにカーテンを開いたときに出来る【溜まり】も大きくなります。

カーテンのたまり(赤丸の箇所)(引用元:シティハウス産業HP施工事例

この溜まりがしっかり壁内におさまり、窓のガラス部分に干渉しないかを確認する必要があります。せっかく大きな見晴らしの良い窓を設置したのにガラス部分がカーテンで隠れてしまうのは勿体ないですもんね。上の間取りを見てみると窓と窓の間の壁が小さいのが分かります。

この大きな窓2つのカーテンのたまりがここに収まるのかというと正直収まらないのは用紙に想像がつきます。したがって、対策としてはこれらの方法が有効です。

  • もうちょっと窓同士を離す
  • 窓の大きさを変更する
  • 上から下げるブラインドやロールスクリーンを設置する

カーテンだけでなく、縦型ブラインドも同じ事がいえます。またテラス窓の外部にウッドデッキ等を設けた場合はエクステリアライトを設置する事もあるので、ライトのスイッチがたまりの後ろに隠れないか?も確認しておきましょう。

吹抜けの場合はオペレーターが窓に干渉しないか?

リビングを吹抜けにする場合、テラス窓の上には大きな窓を設置する事が多いです。窓が開閉できる場合で手動操作の際は開閉オペレータが窓にかからないかをしっかり確認しておく事が大事となります。

このように大きな窓を設置すると壁面が少なくなる為、様々な事についてしっかり考えておく必要があります。だからといって、窓を小さくするのも本末転倒ですので、すべての問題がクリア出来るような工夫と対策をしっかり検討して納得のいく家づくりをして下さればと思います。

 

CATEGORY
クロス・造作・カーテン14
TAG
入居後のお役立ち情報47
戸建て199
一戸建て217
住まいの不満88
家づくり262
マイホーム266
マイホーム計画252
住宅241
間取り57
TOP