2019.4.21(日) 最終更新日2019.4.21 05:02
理想的なダイニング照明スイッチのつくり方
ダイニング照明スイッチの悩みを解決します
豊かな生活を送る為に必要なのものの一つにスイッチやコンセントの位置をどこに設けるかという事があげられます。
せっかくスイッチやコンセントを設けても生活動線上不便な場所にスイッチがあったり、入居後に家具を置いたらコンセントが隠れてしまうというケースがあるからです。実はスイッチのなかでも位置決めが難しいのがダイニングテーブルの照明スイッチ。
キッチンの照明は家事動線上、キッチンへ入るところにスイッチを設ける事が出来る事が多いのですが、ダイニングテーブルの照明は意外とテーブルから離れたところにしか設置出来ないケースが多いからです。

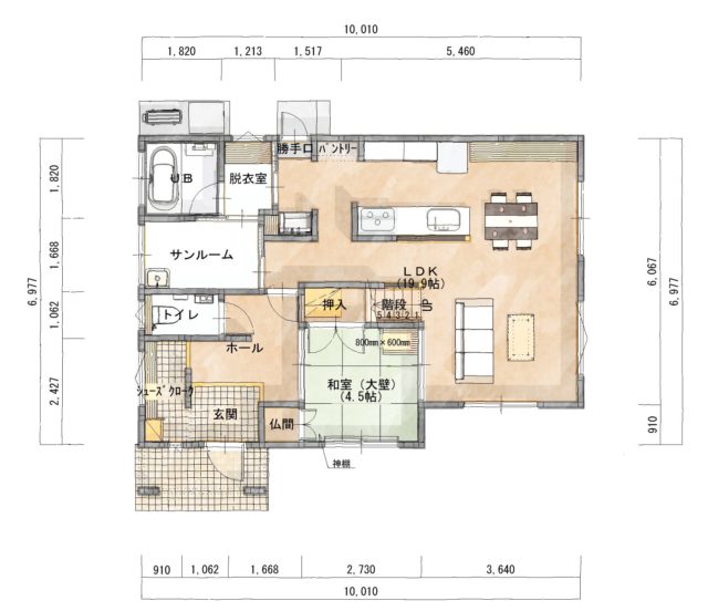
この間取りではどこにスイッチを設置しますか?(引用元:シティハウス産業HP間取りギャラリー)
上の間取りでいうと、下図に示すようにキッチンの入り口(赤丸の壁)にキッチンの照明スイッチは設けられます。

赤丸の箇所だと便利そうです
ところがダイニングテーブルの照明スイッチは下図の記の箇所が候補位置となります。
どこの位置にしてもテーブルからはやや遠く、ちょっと不便そうな感じがします。では少しでもテーブルに近いところにスイッチは設けられないのでしょうか?
その方法の一つはキッチンに腰壁を作るという方法です。(腰壁とは人間の腰高までの壁の事をいいます。)
上の間取りでいうと下図の場所に壁をつくるのです。
腰壁なので、通常のスイッチ位置よりは少し低めの設置になりますが、ダイニングテーブルに近いし、とても便利そうなのがご理解頂けると思います。
このようなスイッチの付け方をした事例の写真はこちらです。(施工事例は後日公開)

金沢市S様邸
腰壁にスイッチをつける事によって、キッチン照明の入切も追加で設置する事も可能ですし、より動線的に便利になるの事は用意に想像できます。キッチンの種類によってはこのようなスイッチを設置する事はできませんが、もしキッチンのスタイルに強いこだわりが無い様でしたらこのような生活スタイルもご検討してみてはいかがでしょうか?
- CATEGORY
- クロス・造作・カーテン(14)

