2018.3.7(水) 最終更新日2018.3.7 10:29
洗面所(脱衣室)の収納スペース確保は忘れずに
家族が増えたり、居住年数が長くなると物は増えます
断捨離という言葉を最近よく目にするようになりました。私自身も物を捨てれない性格ですので、思い切って物を捨てるという事は
- 身の回りがスッキリする
- 捨てても意外と困る事はない
という意味で生活しやすくする為の有効な手段である事は間違いないと思います。
子供が小さい時はおもちゃで室内が溢れかえったりして、収納場所に困る事がありますが、事洗面所ではバスタオルやタオル類が溢れかえります。バスタオルやタオルはこのような理由で処分する量より増える量の方が多いからです。
- よほどへたったり、嫌な臭いがしたり、汚れない限りは使い続けるので意外と長持ちする事
- 各種ご挨拶や贈答品で頂く
年々増え続けるこのタオル類、どこに収納しますか?
使う場所の近くが理想です
当たり前ですが、タオルを使う場所の手の届く位置に収納するのが理想です。
システム洗面化粧台にも収納はありますが、
- シャンプーや洗剤、柔軟剤等の買い置きを収納するとタオルを収納スペースが限られる
- 最近の間取りでは洗面所に収まる化粧台の幅が75cm(収納スペースが限られる)
という事もあり、そんなに大きな収納容量を確保出来ません。

便利な水廻り動線にある洗面化粧台(引用元:施工事例 生活動線と収納容量を重視した暮らしやすい家)
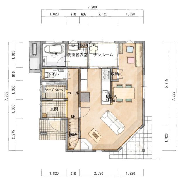
そこで、洗面化粧台周辺にタオルを収納する方法として、最近私が提案しているのはこの方法です。(下の間取り図参照)
- 洗濯機パンをサンルームに設置して、洗面化粧台の横に収納をつくる
上の間取りでいうと、収納の幅は壁~壁の有効寸法で47cm、奥行30cm、高さ230cmです。一見、小さくて近い勝手が悪そうに見えますが、物差しや定規でご確認いただくと分かるようにかなりタオルや買い置きしたサニタリー用品を収納する事が出来ます。さらに、サンルームに洗濯機パンを配置すると干せる洗濯物の量が減るのではないか?と思われがちですが、洗濯物は手動昇降式の物干し竿で天井付近まで持ち上げてあげれば量もそれほど減らす事なく干せます。
洗面所の横以外にも干したものをたたんでそのまま仕舞えるように収納をサンルームに設置する。という方法もあります。
いずれにせよ、洗面化粧台付近が物で溢れないようにしっかり収納スペースを確保出来るように気をつけましょうね。
